
Transforming Spaces to Places.
Our Projects
From concept to completion, Provision Group delivered excellence.
1221 W 24th St. VancouverInfill TownhomesEstimated Completion: Q4, 2026
6209 NE 56th Ave. Vancouver10 cottage lotsEstimated Completion: Q4, 2026
5923 SE 60th Ave. Portland4 unit mhldEstimated Completion: Q4, 2025
4334 NE Holman St. Portland11 cottage lots + 1 SFREstimated Completion: Q3, 2026
3711 NE 88th St. Lots Vancouver37 lotsEstimated Completion: Q3, 2026
6607 N Seneca St. Portland4 detached mhld unitsEstimated Completion: Q3, 2025
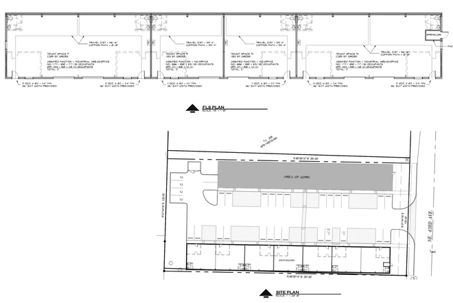
7110 NE 43rd Ave. Vancouver13 unit Light Industrial unitsEstimated Completion: Q3
4990 NE 26th Ave. Portland4 unit condosEstimated Completion: Q2 2026
8015 SE 72nd Ave. Portland2 lots 12 condo unitsCompleted
4330/4340 NE Going St. Portland16 cottagesCompleted
1911 Broadway St. Vancouver8 unit townhome style condosCompleted
11044 SW 61st Ave. Portland10 Unit CondosCompleted
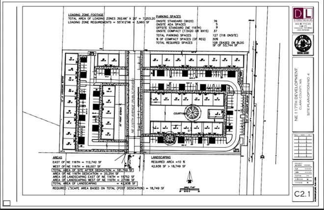
12908 NE 117th Ave. Vancouver39 LI contractor unitsEstimated Completion: 2027
60th AvenueResidentialEstimated Completion: 2024