Skip to content

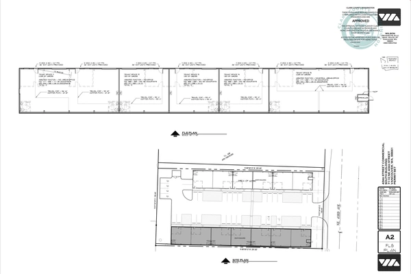
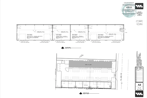
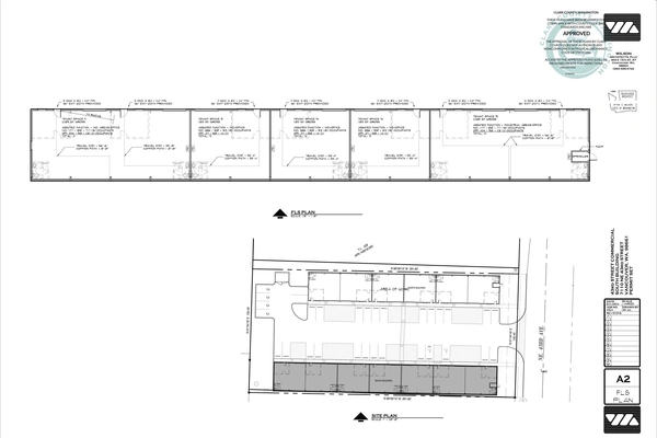
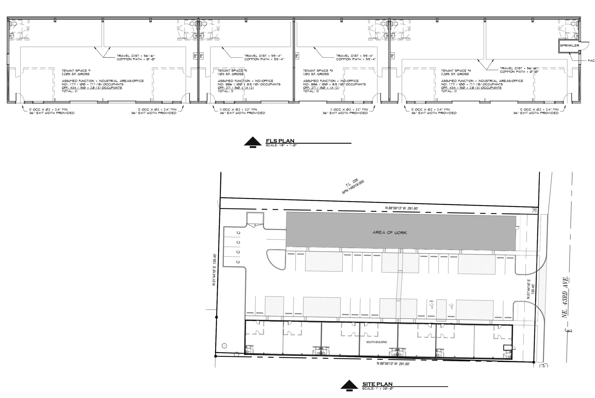
13 Unit Light Industrial Units

7110 NE 43rd Ave. Vancouver

7110 NE 43rd Ave. Vancouver, WA

FeatureDetails
Location7110 NE 43rd Ave. Vancouver, WA
TypeLight Industrial
Units13
StageUnder Construction

Project Description

Light industrial project in Vancouver, WA.

Exterior Photos

Provision Group LLCProvision Group LLC

Committed to quality from foundation to finish. Delivering homes that enhance lives.

Company
Resources
Support
© Provision Group LLC 2025. All rights reserved

Provision Group LLC